티스토리 뷰
목차
[로또 분양] 과천 프레스티어자이 분양가, 일반분양, 분양일정, 모집공고, 모델하우스, 과천4단지 재건축
과천주공 4단지 재건축 단지인과천 프레스티어자이가 10월 7일 일반분양을 시작합니다.
1,445세대의 대단지 아파트로 단지 바로 앞 중심상권, 정부과천청사역, 초등학교, 중학교를 품고 있어 많은 분들의 관심을 받고 있습니다.
과천 최고 입지 프레스티어자이의 청약 경쟁률이 매우 높을 것으로 예상되는데요, 1순위 청약 조건을 아래에서 지금 바로 확인하실 수 있습니다.
과천 프레스티어자이 분양개요
| 위치 | 경기도 과천시 별양동 7번지 일원 |
| 규모 | 11개동, 지하 3층 ~ 지상 35층 |
| 세대수 | 1,445세대 (일반분양 287세대) |
| 타입 | 49, 59, 74, 84, 99, 106, 110, 118, 126㎡ |
| 주차 | 세대 당 1.71대 |
| 분양예정 | 2024년 10월 |
| 입주예정 | 2027년 10월 |
과천 프레스티어자이 아파트 분양에 대한 자세한 내용은 공식 홈페이지에서 지금 바로 확인해 보시기 바랍니다.
과천 프레스티어자이 분양일정
1. 입주자 모집공고 : 9월 27일 (금)
2. 견본주택 개관 : 9월 27일 (금)
3. 특별공급 청약 : 10월 7일 (월)
4. 1순위 청약 : 10월 8일 (화)
5. 당첨자 발표 : 10월 16일 (수)
주택 청약 시 청약자격을 충족하지 못해 당첨이 취소되는 경우가 생각보다 많습니다.
청약 신청 전, 나의 청약 순위와 청약 점수를 미리 계산한 후 청약 신청하시기 바랍니다.
과천 프레스티어자이 세대수
| 타입 | 일반공급 | 일반분양 |
| 49A | 30 | 27 |
| 49AT | 11 | 2 |
| 49B | 2 | 10 |
| 49BT | 1 | 1 |
| 59A | 30 | 18 |
| 59B | 32 | 19 |
| 59BT | 7 | 1 |
| 59C | 1 | 5 |
| 74A | 72 | 40 |
| 74B | 19 | 11 |
| 74BT | 6 | 1 |
| 74C | 1 | 4 |
| 84A | 27 | 9 |
| 84AT | 1 | 2 |
| 84B | 2 | 2 |
| 84C | 2 | 3 |
| 84D | 14 | 2 |
| 84F | 4 | 7 |
| 84G | 9 | 5 |
| 84H | 14 | 1 |
| 99A | 2 | 2 |
| 합계 | 287 | 172 |
과천 프레스티어자이 분양에 관한 자세한 사항은 아래 기관추천 특별공급 안내문을 참고하시기 바랍니다.
과천 프레스티어자이 분양가
과천주공4단지 주택재건축정비사업조합은 시공사인 GS건설과 발코니 확장을 포함한 일반분양가를 평당 5,600만 원 이상으로 책정하기로 협의했습니다.
마포자이힐스테이트 일반분양가 평당 5,150만 원
반포 래미안 원펜타스 일반분양가 평당 6,736만 원
일반분양가 (예상)
| 전용면적 | 평당가 | 분양가 |
| 59 | 5,600만 원 | 14억 |
| 84 | 5,600만 원 | 19억 |
조합원 분양가
| 전용면적 | 평당가 | 조합원 분양가 |
| 84A | 3,687만 원 | 12.86억 |
| 99A | 3,566만 원 | 14.57억 |
| 106 | 3,599만 원 | 15.75억 |
과천 프레스티어자이 입지환경
교통환경
지하철 4호선 정부과천청사역 도보 3분
지하철 4호선, GTX-C노선, 위례과천선 트리플역세권 예정
GTX-C노선 이용하면 삼성역, 양재역 10분
이수-과천 복합터널 사업 예정
버스 20개 노선 운행 중
KTX 광명역까지 9.7km, 차로 15분
교육환경
배정초는 문원초, 도보 9분
인근 문원중, 과천중, 과천율목중, 과천고, 과천중앙고, 과천여고
평촌학원가 이용 가능
생활환경
이마트 과천점, 하나로마트 과천점,
한림대학교 성심병원
청사 앞 소공원, 관문체육공원, 관악산, 청계산, 서울대공원
유튜브 과천주공 4단지 홍보 영상이 있으니, 참고용으로 보시면 도움이 되실 겁니다.
과천 프레스티어자이 평면도 및 단지배치도
49타입
59타입
74타입
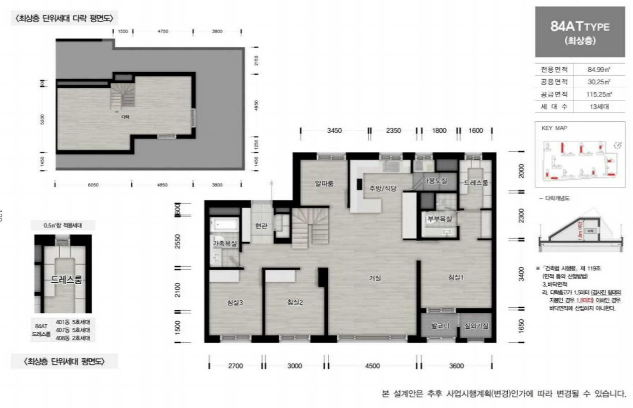
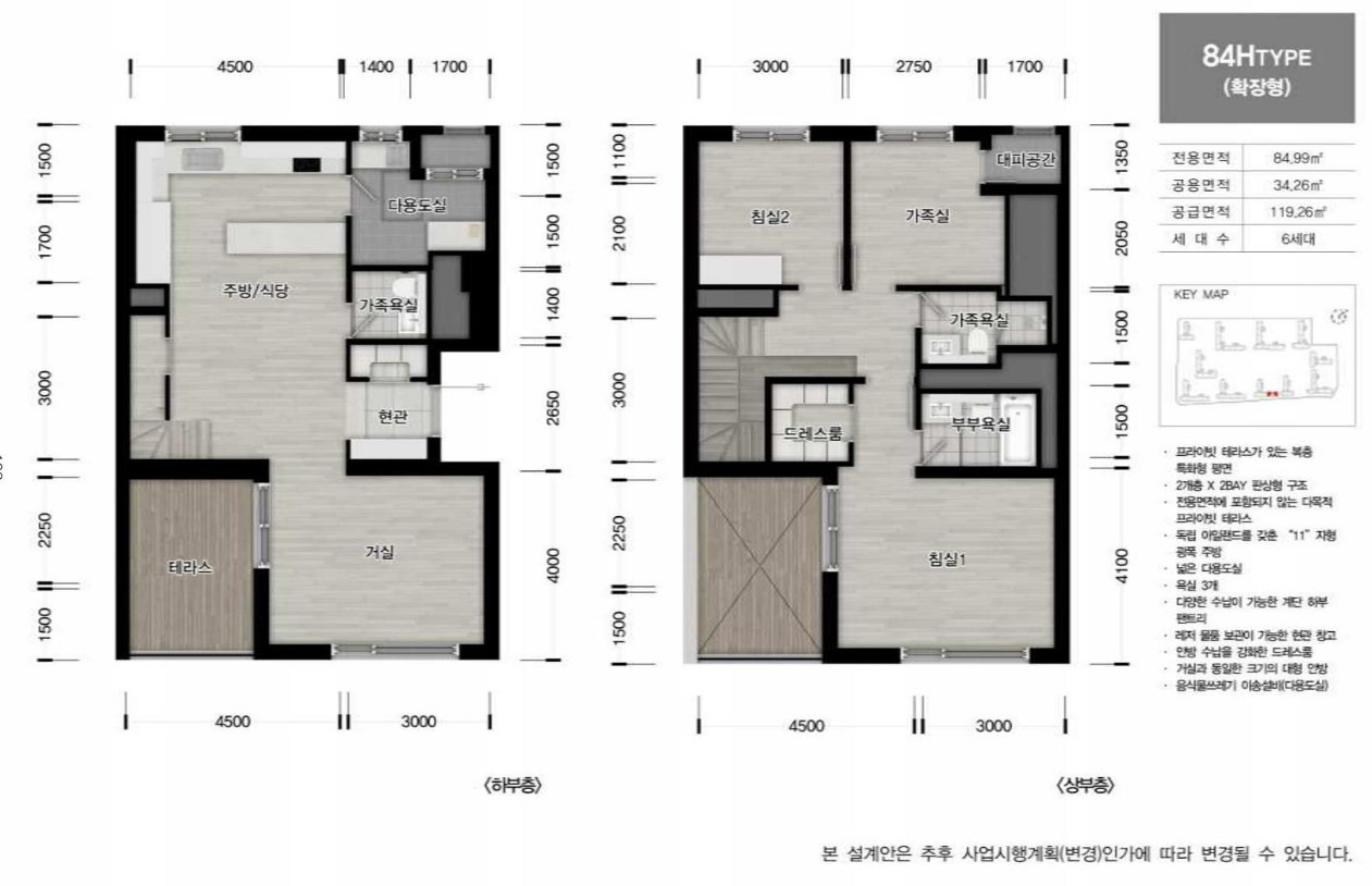
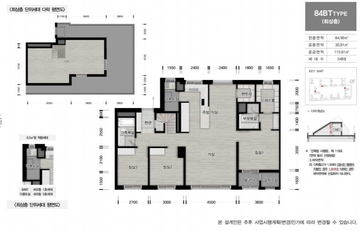
84타입
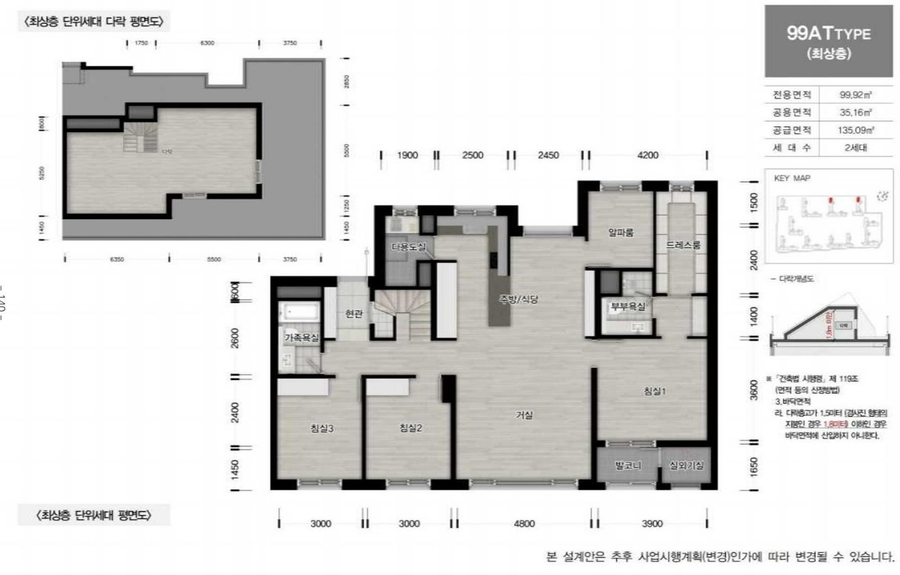
99타입
106타입
118타입
110타입
126타입
![[로또 분양] 과천 프레스티어자이 분양가, 일반분양, 분양일정, 모집공고, 모델하우스, 과천4단지 재건축](https://blog.kakaocdn.net/dna/cYtxNP/btsJqkBFwXe/AAAAAAAAAAAAAAAAAAAAAMQ4Xp9wB4FZCn_NKbAOqIF6_7CdQHRFiU9thAVVuEIW/img.jpg?credential=yqXZFxpELC7KVnFOS48ylbz2pIh7yKj8&expires=1780239599&allow_ip=&allow_referer=&signature=0YhH%2BsAgzEX6Y8TNUdpeDcGDa%2Bg%3D)
![[로또 분양] 과천 프레스티어자이 분양가, 일반분양, 분양일정, 모집공고, 모델하우스, 과천4단지 재건축](https://blog.kakaocdn.net/dna/ct5eoq/btsJrDz3ByG/AAAAAAAAAAAAAAAAAAAAAHDS6PpnlMKYKbI4lav6lEv1ue8KRflw561ERdeJpeZg/img.jpg?credential=yqXZFxpELC7KVnFOS48ylbz2pIh7yKj8&expires=1780239599&allow_ip=&allow_referer=&signature=Z%2FYQ8JddJqw0cFCbJsE2S6kUoIQ%3D)
![[로또 분양] 과천 프레스티어자이 분양가, 일반분양, 분양일정, 모집공고, 모델하우스, 과천4단지 재건축](https://blog.kakaocdn.net/dna/RqrJm/btsJqSxN5NC/AAAAAAAAAAAAAAAAAAAAAGfvMq8Enbjmv9Cs8k0LaO9iSV6SLrxm_NTp3a-qM9F-/img.jpg?credential=yqXZFxpELC7KVnFOS48ylbz2pIh7yKj8&expires=1780239599&allow_ip=&allow_referer=&signature=ZUQ1J0cyxKE3ZZ1COh8UUdLbx6c%3D)
![[로또 분양] 과천 프레스티어자이 분양가, 일반분양, 분양일정, 모집공고, 모델하우스, 과천4단지 재건축](https://blog.kakaocdn.net/dna/lS4FG/btsJqKfH8By/AAAAAAAAAAAAAAAAAAAAAA_M54k0dLBti3GJNvQFoU5LvcSocpDSRwqo-V-L3Ljg/img.jpg?credential=yqXZFxpELC7KVnFOS48ylbz2pIh7yKj8&expires=1780239599&allow_ip=&allow_referer=&signature=D0JAa7jBIMCs5yA7YDqnvk%2FGePI%3D)
![[로또 분양] 과천 프레스티어자이 분양가, 일반분양, 분양일정, 모집공고, 모델하우스, 과천4단지 재건축](https://blog.kakaocdn.net/dna/U8UWF/btsJshQHPX9/AAAAAAAAAAAAAAAAAAAAAOWOzKEA5w7LM6GGErHUFp2MmxVaBC9Xz4PbidT-bdtL/img.jpg?credential=yqXZFxpELC7KVnFOS48ylbz2pIh7yKj8&expires=1780239599&allow_ip=&allow_referer=&signature=VvN7OxxDE85kzdv7M6crAMGKu98%3D)
![[로또 분양] 과천 프레스티어자이 분양가, 일반분양, 분양일정, 모집공고, 모델하우스, 과천4단지 재건축](https://blog.kakaocdn.net/dna/cp5Pub/btsJrEMDDRp/AAAAAAAAAAAAAAAAAAAAAKdi-oEg8KqZvVpePNMgMcclcBKL2G2fkbb1p0nfzH_e/img.jpg?credential=yqXZFxpELC7KVnFOS48ylbz2pIh7yKj8&expires=1780239599&allow_ip=&allow_referer=&signature=KQwATehgYeW9V0gqoppiGEEGKt8%3D)
![[로또 분양] 과천 프레스티어자이 분양가, 일반분양, 분양일정, 모집공고, 모델하우스, 과천4단지 재건축](https://blog.kakaocdn.net/dna/5lNL1/btsJqSLxXLv/AAAAAAAAAAAAAAAAAAAAABQ36f9MlmsL2yZvdT58Kkk3LRLcCnLE_N6BAvNLR3Cn/img.jpg?credential=yqXZFxpELC7KVnFOS48ylbz2pIh7yKj8&expires=1780239599&allow_ip=&allow_referer=&signature=wFUp7PxgIaCLCEbBfZcon3IpNj8%3D)
![[로또 분양] 과천 프레스티어자이 분양가, 일반분양, 분양일정, 모집공고, 모델하우스, 과천4단지 재건축](https://blog.kakaocdn.net/dna/Xf1oZ/btsJqJusoul/AAAAAAAAAAAAAAAAAAAAAMOtGvAmbO2X_sFl0Ie9DvxTCWBLuS59DroxKibYDJhp/img.jpg?credential=yqXZFxpELC7KVnFOS48ylbz2pIh7yKj8&expires=1780239599&allow_ip=&allow_referer=&signature=pvxDc9XJbj3MNEWcfWMaa%2BOM2TQ%3D)
![[로또 분양] 과천 프레스티어자이 분양가, 일반분양, 분양일정, 모집공고, 모델하우스, 과천4단지 재건축](https://blog.kakaocdn.net/dna/lr9aY/btsJqijGKDx/AAAAAAAAAAAAAAAAAAAAAIf6QqFMUyUIWOhapmAJYIDMz8gz_QCKOj3LfUPyo7sa/img.jpg?credential=yqXZFxpELC7KVnFOS48ylbz2pIh7yKj8&expires=1780239599&allow_ip=&allow_referer=&signature=HcCEtRVUSMFCWJXhJYv%2B4Y7vpuI%3D)
![[로또 분양] 과천 프레스티어자이 분양가, 일반분양, 분양일정, 모집공고, 모델하우스, 과천4단지 재건축](https://blog.kakaocdn.net/dna/bEbCfe/btsJrssfopc/AAAAAAAAAAAAAAAAAAAAAGHLYoIsLu0SHxc30sX5kqVn97qO5F_LZ2Cfff7UzKe2/img.jpg?credential=yqXZFxpELC7KVnFOS48ylbz2pIh7yKj8&expires=1780239599&allow_ip=&allow_referer=&signature=b0iApWKgM%2BKiBQqZWzXxctcX8aQ%3D)
![[로또 분양] 과천 프레스티어자이 분양가, 일반분양, 분양일정, 모집공고, 모델하우스, 과천4단지 재건축](https://blog.kakaocdn.net/dna/cdIdhO/btsJqCoKru0/AAAAAAAAAAAAAAAAAAAAAMkb6RKwNEKNuplkOuo9O3TLnF2S3Up5KRz_uetrLqCg/img.jpg?credential=yqXZFxpELC7KVnFOS48ylbz2pIh7yKj8&expires=1780239599&allow_ip=&allow_referer=&signature=g4n8MgqgGdbEVv2odyCP8J8jx88%3D)
![[로또 분양] 과천 프레스티어자이 분양가, 일반분양, 분양일정, 모집공고, 모델하우스, 과천4단지 재건축](https://blog.kakaocdn.net/dna/yJKIF/btsJsjnEyp5/AAAAAAAAAAAAAAAAAAAAAOLJUTXxs1fpCuCHh4a7Y6rF2XpY0UkLLirtecPu7BRI/img.jpg?credential=yqXZFxpELC7KVnFOS48ylbz2pIh7yKj8&expires=1780239599&allow_ip=&allow_referer=&signature=91IykTrb6V%2B6zc6guJ8qYjsijgk%3D)
![[로또 분양] 과천 프레스티어자이 분양가, 일반분양, 분양일정, 모집공고, 모델하우스, 과천4단지 재건축](https://blog.kakaocdn.net/dna/bGcTPs/btsJrmS503O/AAAAAAAAAAAAAAAAAAAAAPGCZGBffb4Y70ffUZwCSbOlXcmP9Ff94tY34wFsBnAd/img.jpg?credential=yqXZFxpELC7KVnFOS48ylbz2pIh7yKj8&expires=1780239599&allow_ip=&allow_referer=&signature=xDfU%2BXmCufCGSDrFUcqa3AA0JTc%3D)
![[로또 분양] 과천 프레스티어자이 분양가, 일반분양, 분양일정, 모집공고, 모델하우스, 과천4단지 재건축](https://blog.kakaocdn.net/dna/IN7HN/btsJqQmFPeb/AAAAAAAAAAAAAAAAAAAAAHgGkJrkckJLZN6XaYY5GwUxoAtuZ-jN20qoq5uDoPeQ/img.jpg?credential=yqXZFxpELC7KVnFOS48ylbz2pIh7yKj8&expires=1780239599&allow_ip=&allow_referer=&signature=S6GEbzNP9OxmKqjZURBsYIxzr1w%3D)
![[로또 분양] 과천 프레스티어자이 분양가, 일반분양, 분양일정, 모집공고, 모델하우스, 과천4단지 재건축](https://blog.kakaocdn.net/dna/6k4wR/btsJrYqtUj5/AAAAAAAAAAAAAAAAAAAAABnlWaW6pIEDl9Qsfk6CEDbdLc2xUZ55uqV0DcC_NNBb/img.jpg?credential=yqXZFxpELC7KVnFOS48ylbz2pIh7yKj8&expires=1780239599&allow_ip=&allow_referer=&signature=icXuIXMAOsUiOaCFG3Yu2r8U1yo%3D)
![[로또 분양] 과천 프레스티어자이 분양가, 일반분양, 분양일정, 모집공고, 모델하우스, 과천4단지 재건축](https://blog.kakaocdn.net/dna/bCj0Ao/btsJqk2VNVm/AAAAAAAAAAAAAAAAAAAAAAvlMWTVAkdRH7SJAaFzrVdWbrZ9wab9SUrIRPbn9bdn/img.jpg?credential=yqXZFxpELC7KVnFOS48ylbz2pIh7yKj8&expires=1780239599&allow_ip=&allow_referer=&signature=MuQDqMoEUGnuI8QYYtug6mzFbxk%3D)
![[로또 분양] 과천 프레스티어자이 분양가, 일반분양, 분양일정, 모집공고, 모델하우스, 과천4단지 재건축](https://blog.kakaocdn.net/dna/LqQau/btsJsxeSR3I/AAAAAAAAAAAAAAAAAAAAAOKnmCBdKhp3CzRvp-4BptMF9TcwZzjd9WPraBGDWfHh/img.jpg?credential=yqXZFxpELC7KVnFOS48ylbz2pIh7yKj8&expires=1780239599&allow_ip=&allow_referer=&signature=B6K%2BRHzty%2BYab6Hp6CyE7qqamjs%3D)
![[로또 분양] 과천 프레스티어자이 분양가, 일반분양, 분양일정, 모집공고, 모델하우스, 과천4단지 재건축](https://blog.kakaocdn.net/dna/cUwdJZ/btsJrR56LqN/AAAAAAAAAAAAAAAAAAAAAM6RvuDC8Ocv5J2D3dsQzAESSazykqCGaKB3P4JzsZlO/img.jpg?credential=yqXZFxpELC7KVnFOS48ylbz2pIh7yKj8&expires=1780239599&allow_ip=&allow_referer=&signature=pVO7uQxaXtv8CT27VAzLzCKhKV0%3D)
![[로또 분양] 과천 프레스티어자이 분양가, 일반분양, 분양일정, 모집공고, 모델하우스, 과천4단지 재건축](https://blog.kakaocdn.net/dna/IX21m/btsJqBwCQc2/AAAAAAAAAAAAAAAAAAAAAJySD1yS9naqzCI-ROXp9X1NJ8wkCy2xiwgoeDzp5w13/img.jpg?credential=yqXZFxpELC7KVnFOS48ylbz2pIh7yKj8&expires=1780239599&allow_ip=&allow_referer=&signature=ZFLx5oeudFqRmfkewzZeIeGZQP4%3D)
![[로또 분양] 과천 프레스티어자이 분양가, 일반분양, 분양일정, 모집공고, 모델하우스, 과천4단지 재건축](https://blog.kakaocdn.net/dna/rSR3f/btsJq12F1v5/AAAAAAAAAAAAAAAAAAAAANmACOgzcr2YPnzF11BSyJUj7bSXqoaJfF1RHXUfz-Mz/img.jpg?credential=yqXZFxpELC7KVnFOS48ylbz2pIh7yKj8&expires=1780239599&allow_ip=&allow_referer=&signature=3ZD6YRVrgI9uVKTWhitHhugWFWw%3D)
![[로또 분양] 과천 프레스티어자이 분양가, 일반분양, 분양일정, 모집공고, 모델하우스, 과천4단지 재건축](https://blog.kakaocdn.net/dna/cKtxX2/btsJrysi1ca/AAAAAAAAAAAAAAAAAAAAAPNwP2MdwPFD7IZTpQlXcdkVk8OJLVzvdmt7xQqhkZ2j/img.jpg?credential=yqXZFxpELC7KVnFOS48ylbz2pIh7yKj8&expires=1780239599&allow_ip=&allow_referer=&signature=qHA6WaQ94d9BDAgA%2FwiDrelq%2F%2BU%3D)
![[로또 분양] 과천 프레스티어자이 분양가, 일반분양, 분양일정, 모집공고, 모델하우스, 과천4단지 재건축](https://blog.kakaocdn.net/dna/byzK1m/btsJsmkdRkI/AAAAAAAAAAAAAAAAAAAAACc-MJNL4d2I4hKPl2AtRmdG2QQ_7MOq-IhSd55LjPBL/img.jpg?credential=yqXZFxpELC7KVnFOS48ylbz2pIh7yKj8&expires=1780239599&allow_ip=&allow_referer=&signature=hhshlcCq1%2FRhmIlSulDiQ8NhyJM%3D)
![[로또 분양] 과천 프레스티어자이 분양가, 일반분양, 분양일정, 모집공고, 모델하우스, 과천4단지 재건축](https://blog.kakaocdn.net/dna/XIvqm/btsJqHQSH1T/AAAAAAAAAAAAAAAAAAAAAHrkfyjpyvrR7rgAhCUvHK1mwMfZwV_yqaikDH7LwlvZ/img.jpg?credential=yqXZFxpELC7KVnFOS48ylbz2pIh7yKj8&expires=1780239599&allow_ip=&allow_referer=&signature=gzzsCr8%2BtgtbE%2B5PXM6neqAG9LM%3D)
![[로또 분양] 과천 프레스티어자이 분양가, 일반분양, 분양일정, 모집공고, 모델하우스, 과천4단지 재건축](https://blog.kakaocdn.net/dna/bDFG6h/btsJry6TcT9/AAAAAAAAAAAAAAAAAAAAAF9-kV8l9AptgAZhMPO2Y6DT2kMuQeo7YKyyXcS7WZ0r/img.jpg?credential=yqXZFxpELC7KVnFOS48ylbz2pIh7yKj8&expires=1780239599&allow_ip=&allow_referer=&signature=oDsFNPApWueitK7%2BkS2o03NOLkg%3D)
![[로또 분양] 과천 프레스티어자이 분양가, 일반분양, 분양일정, 모집공고, 모델하우스, 과천4단지 재건축](https://blog.kakaocdn.net/dna/tgqpO/btsJrGDzyDK/AAAAAAAAAAAAAAAAAAAAALJ4W544Fg2If1oWx_MkgV9YfEP5ulHSID2sniTrje_5/img.jpg?credential=yqXZFxpELC7KVnFOS48ylbz2pIh7yKj8&expires=1780239599&allow_ip=&allow_referer=&signature=0Zoy9L94H91Z1pHH7kSKQI34NOY%3D)
![[로또 분양] 과천 프레스티어자이 분양가, 일반분양, 분양일정, 모집공고, 모델하우스, 과천4단지 재건축](https://blog.kakaocdn.net/dna/RVzDM/btsJqge9wyJ/AAAAAAAAAAAAAAAAAAAAAPLTM_Yv-OQcb8eWTDZ2OfGmvek9ZpFw3_59wgKsVRe7/img.jpg?credential=yqXZFxpELC7KVnFOS48ylbz2pIh7yKj8&expires=1780239599&allow_ip=&allow_referer=&signature=tai4nzGMML%2F0mk0IxLhWTdj45JI%3D)
![[로또 분양] 과천 프레스티어자이 분양가, 일반분양, 분양일정, 모집공고, 모델하우스, 과천4단지 재건축](https://blog.kakaocdn.net/dna/drNl4B/btsJsydM0mt/AAAAAAAAAAAAAAAAAAAAANjmLrU-PbrU_MdU1lubyyR7nwuydQUB7NgeDMgnrtcs/img.jpg?credential=yqXZFxpELC7KVnFOS48ylbz2pIh7yKj8&expires=1780239599&allow_ip=&allow_referer=&signature=mNIQ3bsb9oyw%2FltGTZ2bs0HZB7o%3D)
![[로또 분양] 과천 프레스티어자이 분양가, 일반분양, 분양일정, 모집공고, 모델하우스, 과천4단지 재건축](https://blog.kakaocdn.net/dna/uxNRx/btsJryy9F6z/AAAAAAAAAAAAAAAAAAAAAFSLCv-2npwkNTUt20nTW-96OjXOII_T1Y8kzuuQLhQw/img.jpg?credential=yqXZFxpELC7KVnFOS48ylbz2pIh7yKj8&expires=1780239599&allow_ip=&allow_referer=&signature=fBm90pixR8pmzhgVzVfoWZDn6PM%3D)
![[로또 분양] 과천 프레스티어자이 분양가, 일반분양, 분양일정, 모집공고, 모델하우스, 과천4단지 재건축](https://blog.kakaocdn.net/dna/cbVQAU/btsJr09FTok/AAAAAAAAAAAAAAAAAAAAAL7gQhNe1FWK7DmQu2WtCdL_ZdUPN5CsbcY24dPhxzfb/img.jpg?credential=yqXZFxpELC7KVnFOS48ylbz2pIh7yKj8&expires=1780239599&allow_ip=&allow_referer=&signature=EUvZcs9J%2BgBPriqEWOmMJgHqkQY%3D)
![[로또 분양] 과천 프레스티어자이 분양가, 일반분양, 분양일정, 모집공고, 모델하우스, 과천4단지 재건축](https://blog.kakaocdn.net/dna/W5NBD/btsJqm7pNSx/AAAAAAAAAAAAAAAAAAAAAFOKaKr9Ot8k3_VHH4RrerqoNof2K4y81ZHMkG__Q4CY/img.jpg?credential=yqXZFxpELC7KVnFOS48ylbz2pIh7yKj8&expires=1780239599&allow_ip=&allow_referer=&signature=6xL%2Flw8uINt1qT0WFu3UYdKSNuo%3D)
![[로또 분양] 과천 프레스티어자이 분양가, 일반분양, 분양일정, 모집공고, 모델하우스, 과천4단지 재건축](https://blog.kakaocdn.net/dna/rLLfh/btsJrkAZCyb/AAAAAAAAAAAAAAAAAAAAAPZURIeD9AUEDYigrFEXMjpXYpgWFuDQOK1PlAyncmkm/img.jpg?credential=yqXZFxpELC7KVnFOS48ylbz2pIh7yKj8&expires=1780239599&allow_ip=&allow_referer=&signature=AGcBzm6AY8PO8AzyM03vRR3U6HM%3D)
![[로또 분양] 과천 프레스티어자이 분양가, 일반분양, 분양일정, 모집공고, 모델하우스, 과천4단지 재건축](https://blog.kakaocdn.net/dna/p7JDo/btsJsni69GQ/AAAAAAAAAAAAAAAAAAAAAPCGWei9xGWv8yU_m_l_6i0vpJbIKzweSqL7i1HAIvBY/img.jpg?credential=yqXZFxpELC7KVnFOS48ylbz2pIh7yKj8&expires=1780239599&allow_ip=&allow_referer=&signature=eWZGUIA1ABrMUEsu%2Fk%2BHoYdaU%2Bk%3D)
![[로또 분양] 과천 프레스티어자이 분양가, 일반분양, 분양일정, 모집공고, 모델하우스, 과천4단지 재건축](https://blog.kakaocdn.net/dna/bdiMpx/btsJr4xl1FR/AAAAAAAAAAAAAAAAAAAAAC5Z1hGgAqPdcHKgFahRpnUqxo5NH1ZWjUZNiGri6dVX/img.jpg?credential=yqXZFxpELC7KVnFOS48ylbz2pIh7yKj8&expires=1780239599&allow_ip=&allow_referer=&signature=MPVC7v%2Fh9eFwbFaAeVzznhPOQ60%3D)
![[로또 분양] 과천 프레스티어자이 분양가, 일반분양, 분양일정, 모집공고, 모델하우스, 과천4단지 재건축](https://blog.kakaocdn.net/dna/cHyhOt/btsJq7PfY4p/AAAAAAAAAAAAAAAAAAAAANu5KYkP9JU48hitYLizfieSZBPb08tvb37COQDmRjng/img.jpg?credential=yqXZFxpELC7KVnFOS48ylbz2pIh7yKj8&expires=1780239599&allow_ip=&allow_referer=&signature=%2F7n25V1bzbAKQUEhadaZ%2FGocFvU%3D)
![[로또 분양] 과천 프레스티어자이 분양가, 일반분양, 분양일정, 모집공고, 모델하우스, 과천4단지 재건축](https://blog.kakaocdn.net/dna/ZCZYa/btsJsQrJ4C5/AAAAAAAAAAAAAAAAAAAAAOpfuZuCJ-XbnL5KCr-GphfBOSGvHcxwRQUlenGG2EMy/img.jpg?credential=yqXZFxpELC7KVnFOS48ylbz2pIh7yKj8&expires=1780239599&allow_ip=&allow_referer=&signature=1xqKVpaRQWLGaM6ZthHT7daZOTY%3D)
![[로또 분양] 과천 프레스티어자이 분양가, 일반분양, 분양일정, 모집공고, 모델하우스, 과천4단지 재건축](https://blog.kakaocdn.net/dna/p9H2I/btsJrE61T9O/AAAAAAAAAAAAAAAAAAAAAA7GqjwUIK2xiFvFWCSjBFqoIO5lc6Av96sye9Jqgehb/img.jpg?credential=yqXZFxpELC7KVnFOS48ylbz2pIh7yKj8&expires=1780239599&allow_ip=&allow_referer=&signature=oh8ZbyIK9Ki5536cgo2rh%2Boj288%3D)
![[로또 분양] 과천 프레스티어자이 분양가, 일반분양, 분양일정, 모집공고, 모델하우스, 과천4단지 재건축](https://blog.kakaocdn.net/dna/kXb5v/btsJrHvKPYF/AAAAAAAAAAAAAAAAAAAAAKRIWWYUl2TMIUCgn1y-Fe4vnxwXha6GbVJcjSY7wEJp/img.jpg?credential=yqXZFxpELC7KVnFOS48ylbz2pIh7yKj8&expires=1780239599&allow_ip=&allow_referer=&signature=t%2BD1w4URyy2xrMu%2FjX3vLoBYMuk%3D)
![[로또 분양] 과천 프레스티어자이 분양가, 일반분양, 분양일정, 모집공고, 모델하우스, 과천4단지 재건축](https://blog.kakaocdn.net/dna/Q5Y1W/btsJrBJkNgW/AAAAAAAAAAAAAAAAAAAAAG1H0U2gSkV_gSa9tLZDQXwsj4IVF1F-V5tAyMCA1XZE/img.jpg?credential=yqXZFxpELC7KVnFOS48ylbz2pIh7yKj8&expires=1780239599&allow_ip=&allow_referer=&signature=zEkOLfO3b3Zy7TN3%2BiAVX7vQO84%3D)
![[로또 분양] 과천 프레스티어자이 분양가, 일반분양, 분양일정, 모집공고, 모델하우스, 과천4단지 재건축](https://blog.kakaocdn.net/dna/bUFJDJ/btsJqEUh6tR/AAAAAAAAAAAAAAAAAAAAAIznmAyH9WP6e6oZkauxsEupg223euZAwxws7afdYRiN/img.jpg?credential=yqXZFxpELC7KVnFOS48ylbz2pIh7yKj8&expires=1780239599&allow_ip=&allow_referer=&signature=9%2BMYbJFwFVjGYOwPUByf4fntZII%3D)
![[로또 분양] 과천 프레스티어자이 분양가, 일반분양, 분양일정, 모집공고, 모델하우스, 과천4단지 재건축](https://blog.kakaocdn.net/dna/y2TaF/btsJsQyvBhE/AAAAAAAAAAAAAAAAAAAAAL1fd8nfNbj3vkPRovIgZVTJMNpnBzXEXq_2qI7VC0FL/img.jpg?credential=yqXZFxpELC7KVnFOS48ylbz2pIh7yKj8&expires=1780239599&allow_ip=&allow_referer=&signature=4NGnv1XpnGKs8OfT8xHSAbNO%2B%2Bk%3D)
![[로또 분양] 과천 프레스티어자이 분양가, 일반분양, 분양일정, 모집공고, 모델하우스, 과천4단지 재건축](https://blog.kakaocdn.net/dna/bSkg5l/btsJrSjBsoQ/AAAAAAAAAAAAAAAAAAAAAFCGghGA0YkAf6UUhTfivFNnTfIcoyRqL8Btv3S5R2wl/img.jpg?credential=yqXZFxpELC7KVnFOS48ylbz2pIh7yKj8&expires=1780239599&allow_ip=&allow_referer=&signature=9Jqi3kclApQw%2F91KGd5%2F0NcTT%2B0%3D)
![[로또 분양] 과천 프레스티어자이 분양가, 일반분양, 분양일정, 모집공고, 모델하우스, 과천4단지 재건축](https://blog.kakaocdn.net/dna/coAsHI/btsJrBvMnXI/AAAAAAAAAAAAAAAAAAAAAAQp_JqQQ16As-D6D9FDzTkeo3yDnzSBRahonm4feifm/img.jpg?credential=yqXZFxpELC7KVnFOS48ylbz2pIh7yKj8&expires=1780239599&allow_ip=&allow_referer=&signature=aVjChewI16I2RuFbjSHVOSMP%2FqM%3D)
![[로또 분양] 과천 프레스티어자이 분양가, 일반분양, 분양일정, 모집공고, 모델하우스, 과천4단지 재건축](https://blog.kakaocdn.net/dna/EN6IR/btsJqII2ARp/AAAAAAAAAAAAAAAAAAAAAPM90mWRmqBrz1D5zjUlvDg2sSc97T12iVomK79jeQDT/img.jpg?credential=yqXZFxpELC7KVnFOS48ylbz2pIh7yKj8&expires=1780239599&allow_ip=&allow_referer=&signature=HaueB%2F7i5ltVjty6rBJgAs2E4XU%3D)
![[로또 분양] 과천 프레스티어자이 분양가, 일반분양, 분양일정, 모집공고, 모델하우스, 과천4단지 재건축](https://blog.kakaocdn.net/dna/bqpqxU/btsJrqunAfo/AAAAAAAAAAAAAAAAAAAAAPRKfiJDEuA-vjCQ9uReYY9v1kx8rRnK-_E8TcCVnumq/img.jpg?credential=yqXZFxpELC7KVnFOS48ylbz2pIh7yKj8&expires=1780239599&allow_ip=&allow_referer=&signature=JpN2C3kzCnNiesfyNvPlBIDYmdw%3D)
![[로또 분양] 과천 프레스티어자이 분양가, 일반분양, 분양일정, 모집공고, 모델하우스, 과천4단지 재건축](https://blog.kakaocdn.net/dna/ceo77W/btsJqJBhLre/AAAAAAAAAAAAAAAAAAAAAACUKxPxlTIGzAISnaQInoZ4b16VcsjPgr9DBfHOFdgQ/img.jpg?credential=yqXZFxpELC7KVnFOS48ylbz2pIh7yKj8&expires=1780239599&allow_ip=&allow_referer=&signature=yusD%2BWJyKOoRnXG%2FglQ87uJGhx4%3D)
![[로또 분양] 과천 프레스티어자이 분양가, 일반분양, 분양일정, 모집공고, 모델하우스, 과천4단지 재건축](https://blog.kakaocdn.net/dna/19VEK/btsJrKeX4OO/AAAAAAAAAAAAAAAAAAAAAKcwlcuR3WnF6EFAlexVbUWDB6iqjB9dQjtUouC6R4y5/img.jpg?credential=yqXZFxpELC7KVnFOS48ylbz2pIh7yKj8&expires=1780239599&allow_ip=&allow_referer=&signature=udoTwlZ7WfcZqNT5kIY7NUZz%2FnE%3D)
![[로또 분양] 과천 프레스티어자이 분양가, 일반분양, 분양일정, 모집공고, 모델하우스, 과천4단지 재건축](https://blog.kakaocdn.net/dna/blm2dZ/btsJsyZbafL/AAAAAAAAAAAAAAAAAAAAAE4yVT-jwu0dqXg8TAx2xR3FmrWqf55eX-4jbTXHFoQI/img.jpg?credential=yqXZFxpELC7KVnFOS48ylbz2pIh7yKj8&expires=1780239599&allow_ip=&allow_referer=&signature=Tr87k6SKX%2FF617oWKXFOhQ6ba4A%3D)
![[로또 분양] 과천 프레스티어자이 분양가, 일반분양, 분양일정, 모집공고, 모델하우스, 과천4단지 재건축](https://blog.kakaocdn.net/dna/b1CzXD/btsJsnXJNGU/AAAAAAAAAAAAAAAAAAAAAK489iQpcFfPDY5zGdfIhSUlH_--znlyqPt29uoIoxU7/img.jpg?credential=yqXZFxpELC7KVnFOS48ylbz2pIh7yKj8&expires=1780239599&allow_ip=&allow_referer=&signature=1vBr13JAOCtQoXoWoqUctlUte4c%3D)
![[로또 분양] 과천 프레스티어자이 분양가, 일반분양, 분양일정, 모집공고, 모델하우스, 과천4단지 재건축](https://blog.kakaocdn.net/dna/LO2g2/btsJqpwmasr/AAAAAAAAAAAAAAAAAAAAAFU136_249PtJuKD0SRmBk_Wt6RTlYyGGeMuhUrjXnA9/img.jpg?credential=yqXZFxpELC7KVnFOS48ylbz2pIh7yKj8&expires=1780239599&allow_ip=&allow_referer=&signature=yGZg2p%2FoC5fFK%2Bo5UI87Wcpkz3I%3D)
![[로또 분양] 과천 프레스티어자이 분양가, 일반분양, 분양일정, 모집공고, 모델하우스, 과천4단지 재건축](https://blog.kakaocdn.net/dna/cgaumY/btsJsACFQxf/AAAAAAAAAAAAAAAAAAAAAEJgqZEOpozMVTgcXuasANQG5IFEUveVfaDHuZJOI-u0/img.jpg?credential=yqXZFxpELC7KVnFOS48ylbz2pIh7yKj8&expires=1780239599&allow_ip=&allow_referer=&signature=npDV1VJMcj%2BNywrNgIrJ%2FVdGky8%3D)
![[로또 분양] 과천 프레스티어자이 분양가, 일반분양, 분양일정, 모집공고, 모델하우스, 과천4단지 재건축](https://blog.kakaocdn.net/dna/eeEEa3/btsJrC89LkO/AAAAAAAAAAAAAAAAAAAAANunclokXUF54GGNVYv1E5Bk3GK6AXDpxgmivLp22BKZ/img.jpg?credential=yqXZFxpELC7KVnFOS48ylbz2pIh7yKj8&expires=1780239599&allow_ip=&allow_referer=&signature=0yQxXM%2FSQS2p6b6pZD%2BrEeal6%2Fs%3D)
![[로또 분양] 과천 프레스티어자이 분양가, 일반분양, 분양일정, 모집공고, 모델하우스, 과천4단지 재건축](https://blog.kakaocdn.net/dna/LyHCz/btsJqBXESJh/AAAAAAAAAAAAAAAAAAAAAJeFkoyFveossilJeViYHBH_JdQszRHVo6q9mona4AbD/img.jpg?credential=yqXZFxpELC7KVnFOS48ylbz2pIh7yKj8&expires=1780239599&allow_ip=&allow_referer=&signature=XyJRvgzEYWis1EqT7WILynTECV0%3D)
![[로또 분양] 과천 프레스티어자이 분양가, 일반분양, 분양일정, 모집공고, 모델하우스, 과천4단지 재건축](https://blog.kakaocdn.net/dna/cw1mvH/btsJqALfTnS/AAAAAAAAAAAAAAAAAAAAAG0Jr7Mw3NrsCK8zdEnBQ0P-a5g97F-25PMvajjFleeo/img.jpg?credential=yqXZFxpELC7KVnFOS48ylbz2pIh7yKj8&expires=1780239599&allow_ip=&allow_referer=&signature=tTZX%2BkNugrMd7SiIaT8nR0rmgaA%3D)
![[로또 분양] 과천 프레스티어자이 분양가, 일반분양, 분양일정, 모집공고, 모델하우스, 과천4단지 재건축](https://blog.kakaocdn.net/dna/Bz0ZC/btsJsPTT9rl/AAAAAAAAAAAAAAAAAAAAAJ6D2I8asuHF166p-QH6fPJL45Q6xmg5TKJsVCOHbVYH/img.jpg?credential=yqXZFxpELC7KVnFOS48ylbz2pIh7yKj8&expires=1780239599&allow_ip=&allow_referer=&signature=Ryx4Q7uTYuzUdqXUKM%2FIbylNwzs%3D)
![[로또 분양] 과천 프레스티어자이 분양가, 일반분양, 분양일정, 모집공고, 모델하우스, 과천4단지 재건축](https://blog.kakaocdn.net/dna/bIrchs/btsJqY5YAjt/AAAAAAAAAAAAAAAAAAAAAGBiQSKgXr9iE_aYDdEQ7ln-ilgWo-sqjNm25OeJQclQ/img.jpg?credential=yqXZFxpELC7KVnFOS48ylbz2pIh7yKj8&expires=1780239599&allow_ip=&allow_referer=&signature=fURM1dlTuZOsMtiPCydVprxCnDA%3D)
![[로또 분양] 과천 프레스티어자이 분양가, 일반분양, 분양일정, 모집공고, 모델하우스, 과천4단지 재건축](https://blog.kakaocdn.net/dna/cPkQBp/btsJsACFQuX/AAAAAAAAAAAAAAAAAAAAAC5IdWQVATRGZtzRL4Pb_feb5RNq4SOxYE6WRoHMQJFL/img.jpg?credential=yqXZFxpELC7KVnFOS48ylbz2pIh7yKj8&expires=1780239599&allow_ip=&allow_referer=&signature=Q0LWkQ9VJJ755iOC58VFPAghexU%3D)
![[로또 분양] 과천 프레스티어자이 분양가, 일반분양, 분양일정, 모집공고, 모델하우스, 과천4단지 재건축](https://blog.kakaocdn.net/dna/m5fgR/btsJrnYIAgm/AAAAAAAAAAAAAAAAAAAAADd5BMvLNP62POWHZkOlEO9doalZZ9MZE1yJ2kkpOCLZ/img.jpg?credential=yqXZFxpELC7KVnFOS48ylbz2pIh7yKj8&expires=1780239599&allow_ip=&allow_referer=&signature=TbEqgmpiq%2Fs3guNY%2B1epc3cUE38%3D)
![[로또 분양] 과천 프레스티어자이 분양가, 일반분양, 분양일정, 모집공고, 모델하우스, 과천4단지 재건축](https://blog.kakaocdn.net/dna/deickP/btsJrARduW9/AAAAAAAAAAAAAAAAAAAAAOqnvNeQeEBkaLgi-vJIvxuqJFv1x2m0Adqt_0MVGrT8/img.jpg?credential=yqXZFxpELC7KVnFOS48ylbz2pIh7yKj8&expires=1780239599&allow_ip=&allow_referer=&signature=9VNI99byUSOxC37Ogfb1MY1BZDk%3D)
![[로또 분양] 과천 프레스티어자이 분양가, 일반분양, 분양일정, 모집공고, 모델하우스, 과천4단지 재건축](https://blog.kakaocdn.net/dna/t3CgN/btsJqC3euyj/AAAAAAAAAAAAAAAAAAAAAPdQD1EgjhxYw_r6XI9-8PBIcc8LBo4bpB-5z1b5hp5u/img.jpg?credential=yqXZFxpELC7KVnFOS48ylbz2pIh7yKj8&expires=1780239599&allow_ip=&allow_referer=&signature=%2BFNk%2FcHCsjcR3B1vSEo79xrSRFE%3D)
![[로또 분양] 과천 프레스티어자이 분양가, 일반분양, 분양일정, 모집공고, 모델하우스, 과천4단지 재건축](https://blog.kakaocdn.net/dna/cBjlHO/btsJqSdNl5C/AAAAAAAAAAAAAAAAAAAAAEVtps_KUTxNhPt18Ll3MXSZ5T9srKJH97FbMAXxEVd-/img.jpg?credential=yqXZFxpELC7KVnFOS48ylbz2pIh7yKj8&expires=1780239599&allow_ip=&allow_referer=&signature=HsknUVFT%2F6CWwv2NXDKYMKIBhxE%3D)
![[로또 분양] 과천 프레스티어자이 분양가, 일반분양, 분양일정, 모집공고, 모델하우스, 과천4단지 재건축](https://blog.kakaocdn.net/dna/ClTCD/btsJqF6L2az/AAAAAAAAAAAAAAAAAAAAABFrHPFGmHQb34DHmjSpsjy7tXlzdRqtCXEstr16wXsk/img.jpg?credential=yqXZFxpELC7KVnFOS48ylbz2pIh7yKj8&expires=1780239599&allow_ip=&allow_referer=&signature=fu5%2BlJQy6zofl2vuOlaDvyQ0Cnc%3D)